威浪仕
首页
走进威浪仕
产品中心
全球案例
服务支持
联系我们
售前:17276494626
售后:400-806-5128
首页
产品中心
恒温系统
板式热交换器
产品介绍:
020-81503381
留言
分享:
产品详情
产品描述
技术参数
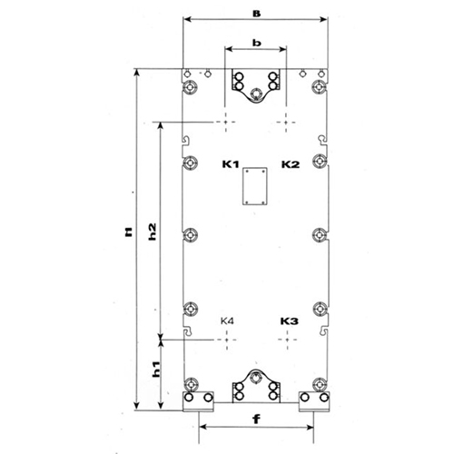
结构尺寸图
产品推荐
水产养殖专用热泵
冷水机