售前:17276494626
售后:400-806-5128
中国建设工程鲁班奖(国家优质工程)简称鲁班奖,创办于1987年,是一项由住建部指导、中国建筑业协会实施评选的奖项,是中国建筑行业工程质量的最高荣誉奖。2020年中国建设工程最高奖——“鲁班奖”,西安交通大学科技创新港基地项目荣誉上榜。

西安交通大学中国西部科技创新港基地坐落于中国西部科技创新港,它是教育部与陕西省合作共建的国家级重点项目。其中,9#楼集图书馆、游泳池及餐厅等功能为一体的庞大建筑设施,总建筑面积18680㎡,地上三层(高度21.35m),地下两层,游泳馆位于地下一层。

水处理系统设计:
根据竞赛游泳池的特性,采用逆流式循环方式。全部循环水量经设在池底的给水口送入游泳池内;池水满溢流进设在泳池周边的溢流回水槽内,通过回水槽下方的溢流回水管重力流入均衡水池。
该循环方式的优点:
① 能有效去除池水表面的赃物杂质;
② 保证不同水层、不同部位的池内水质均匀;
③ 能均匀有效的进行换水工作,用净化处理后洁净的水替换尚未处理的水;
④ 池底均匀布置给水口使池内水流均匀,能有效防止出现涡流、短流和死水区等现象。

西安交通大学中国西部科技创新港校区游泳池水处理流程图
由于该项目池水循环流量较大,因此选用卧式石英砂过滤器+臭氧消毒+氯消毒的水处理方式;并根据当地气候条件和现场实际情况,选择低温型泳池专用空气源热泵作为直接加热源,提供泳池初次加热和维持泳池恒温运行。


空气源热泵是一种安全、节能、低污染符合绿色发展的技术成熟的节能环保设备,它是一种利用少量的电能来驱动压缩机工作,利用相变吸热、放热的特点吸收空气中的热量,空气源热泵制热时耗电量非常低,仅为普通电锅炉的四分之一。

在水质保证的同时还要有舒适的游泳空间环境,因游泳池水面较大、水温较高,水面易蒸发,易出现下面问题:
1.有害物质危害人体健康;
2.建筑和装饰造成腐蚀;
3.能耗过高,浪费能源;
4.空间潮湿,感官差,电器易漏电。
为解决以上难题,最终选择LASWIM(威浪仕)泳池专用多功能除湿热泵,它是能实现室内恒温、恒湿、节能、节水、延长建筑物使用寿命的绿色、环保的设备。

①将室内游泳池面上空散失的湿热空气通过回风管道全部回收到除湿热泵,经过热泵的低温蒸发器使其温度急速降低水蒸汽凝结成水,达到除湿效果,并提升室内空间环境舒适度,防止湿热空气对建筑结构及设备的结露和腐蚀;
②在蒸发器冷凝除湿的同时,其热量传给了冷媒,冷媒则可将一部分热量通过池水冷凝器传到需要加热的池水;另一部分热量经过空气冷凝器将除湿后干冷的空气重新加热到一定的温度,并与新风混合后,重新送回游泳池、游乐池室内空间,提供了免费的热量;
③它能每消耗 1kw 的电能可回收 3kw~4kw 的热能;

④根据季节变化实现不同工作模式;
1)冬季需热量较大而回收的热量不够时,可以自动开启辅助加热系统补充不足的热量;
2)夏季环境温度较高,需要的热量不多,而回收的热量有富裕时,则可将多余的热量通过室外冷凝器排放到室外大气中,达到制冷的目的;

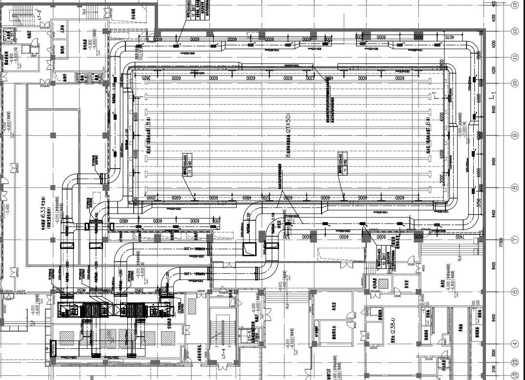
西安交通大学风管平面布置图
3)春秋过渡季节,室外环境温度、湿度较好。热泵的风机系统,则可以直接将室内的空气排到室外,实现全新通风换气,在以上的工作过程中,热泵只需要提供自身运行的电能即可实现恒温泳池内空间除湿、空气制冷制热、通风换气及池水加热多种功能。
作为学校游泳池,对于游泳池水质是否达标显得尤为重要,设计阶段要根据学校游泳池使用特点做针对性的设计,同时优良的施工和后期运行维护也是保证水质的重要组成部分。